CELLARS BUILDERS

Your wine collection is growing, and you want to invest in a climate-controlled wine cellar. However, you don’t have an extra space in your home except for a small pantry closet. Do not hesitate to contact a wine cellar specialist to do an amazing transformation. Learn how Wine Cellar Specialists fulfilled the dream of an avid collector to turn a seldom-used space into an elegant wine room with functional features.
Pantry Closet Wine Cellar Conversion
Wine collecting has been a favorite hobby of many homeowners in many areas in Texas, resulting in an increase in demand for climate-controlled wine cellars.

The Williams family in Houston requested Wine Cellar Specialists, our partner in wine room construction, to design and install their dream wine cellar.
The space to be utilized was a small pantry closet. The ceiling height of the room is almost 11 feet. It had a solid door, and there were shelves on the three walls.
The main challenge on this project was the small space. However, the size of the room did not stop Wine Cellar Specialists from building a safe and attractive wine cellar for their client.
Assessment and Creation of 3D Drawings

Wine Cellar Specialists offers free CAD drawings of the completed wine room for every design request. Before creating the images, they had to make a careful assessment of the client’s requirements, which would help them come up with an impressive and functional design.
During the assessment stage, Wine Cellar Specialists sat down with the owner and discussed the requirements for the project. They needed to know the answers to the following questions:
– What is the size of the room?
– How many bottles does the client want to store in his/her wine cellar?
– What is the overall ambiance that the owner wants for his/her wine room?
– What is the budget for the project?
Making a careful assessment before creating 3-dimensional images ensures that all the client’s needs are met and prevents more revisions of the design. After the client saw and approved the drawings, Wine Cellar Specialists started preparing the room for construction.
CAD Drawings
Preparing the Wine Room for Construction

When constructing a climate-controlled wine cellar, the main goal is to provide wine the best storage environment.
Working with an expert in wine room design and installation will help you achieve this by creating power sources, rewiring electrical outlets (if necessary), and insulating the room.
Before insulating the room for this project, Wine Cellars Specialists had to remove the existing walls, ceiling, and shelving.
They rewired the room for the LED lights, which were installed above the arch and display row. They also added a power source for the wine cooling condenser.
Wine Room Insulation
Your chosen builder must know the importance of proper room insulation in long-term wine storage. It prevents air leakage to and from the wine cellar.
When the air leaks, there will be unstable temperatures and variable humidity levels, which will cause wine spoilage. Poor insulation will also force the cooling unit to work harder that its normal operation. The result is higher energy bills.
On this project, Wine Cellar Specialists used closed-cell spray foam insulation, a mixture of liquid components that expands into foam.
High-Performance Wine Cooling System
Wine deteriorates easily if stored in poor conditions. Exposing it to excessive heat, UV light, vibration, and odor are wine’s enemies. Investing in an efficient cooling system will ensure that your wine cellar will provide wine a safe place for maturation.
Features of the Climate Control System

On this project, Wine Cellar Specialists used the RM2600 ductless split wine cooling unit by US Cellar Systems. It is designed to mount on the wall horizontally and can also fit in a soffit and between ceiling joists.
This type of refrigeration system has access panels that help in the proper distribution of the air inside the cellar. The unit also has insulated and rust proof aluminum housing, making it ideal for humid conditions in the cellar.
Custom Wine Rack Design
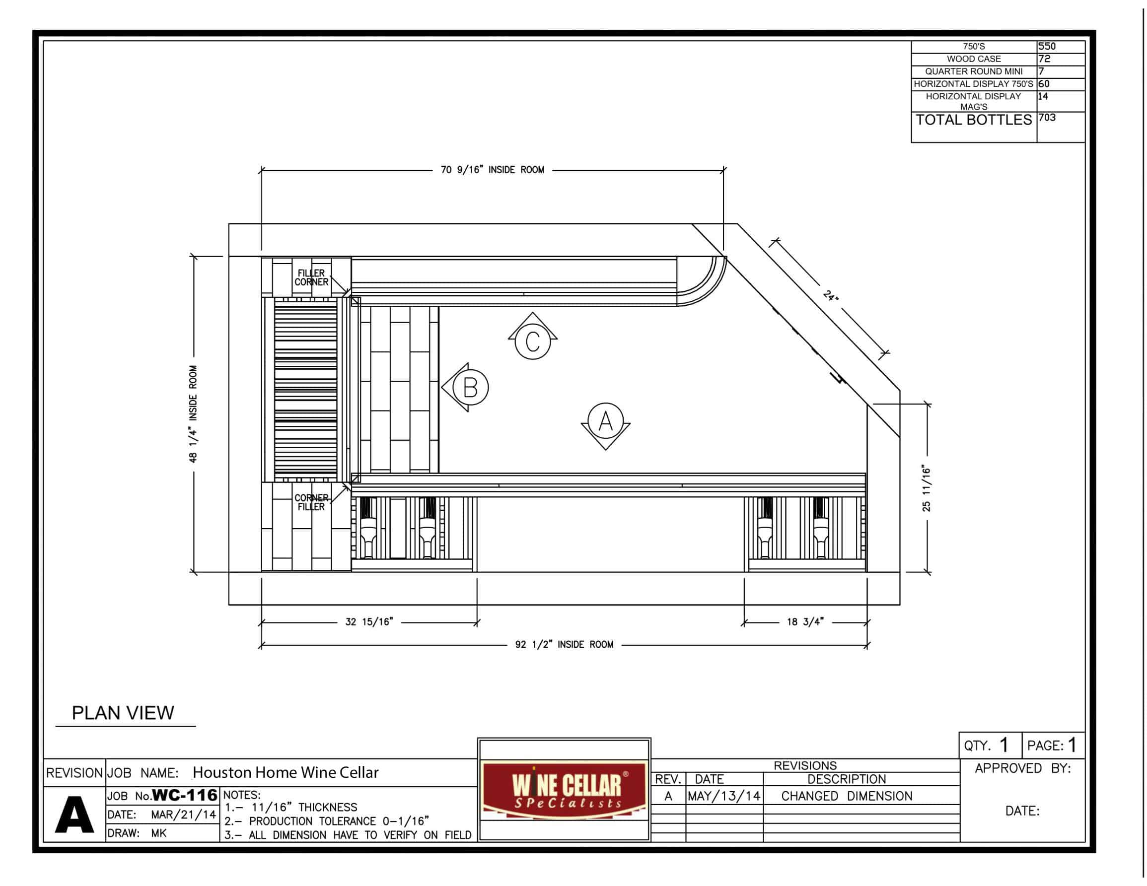
The client chose to customize their wine racks to achieve a more functional and attractive design. Wine Cellar Specialists created a racking system that could accommodate 700 bottles. They combined various bottle orientations and used the floor to ceiling height wine racks to maximize the storage capacity of the room and create a visually appealing wine display.
Right Wall

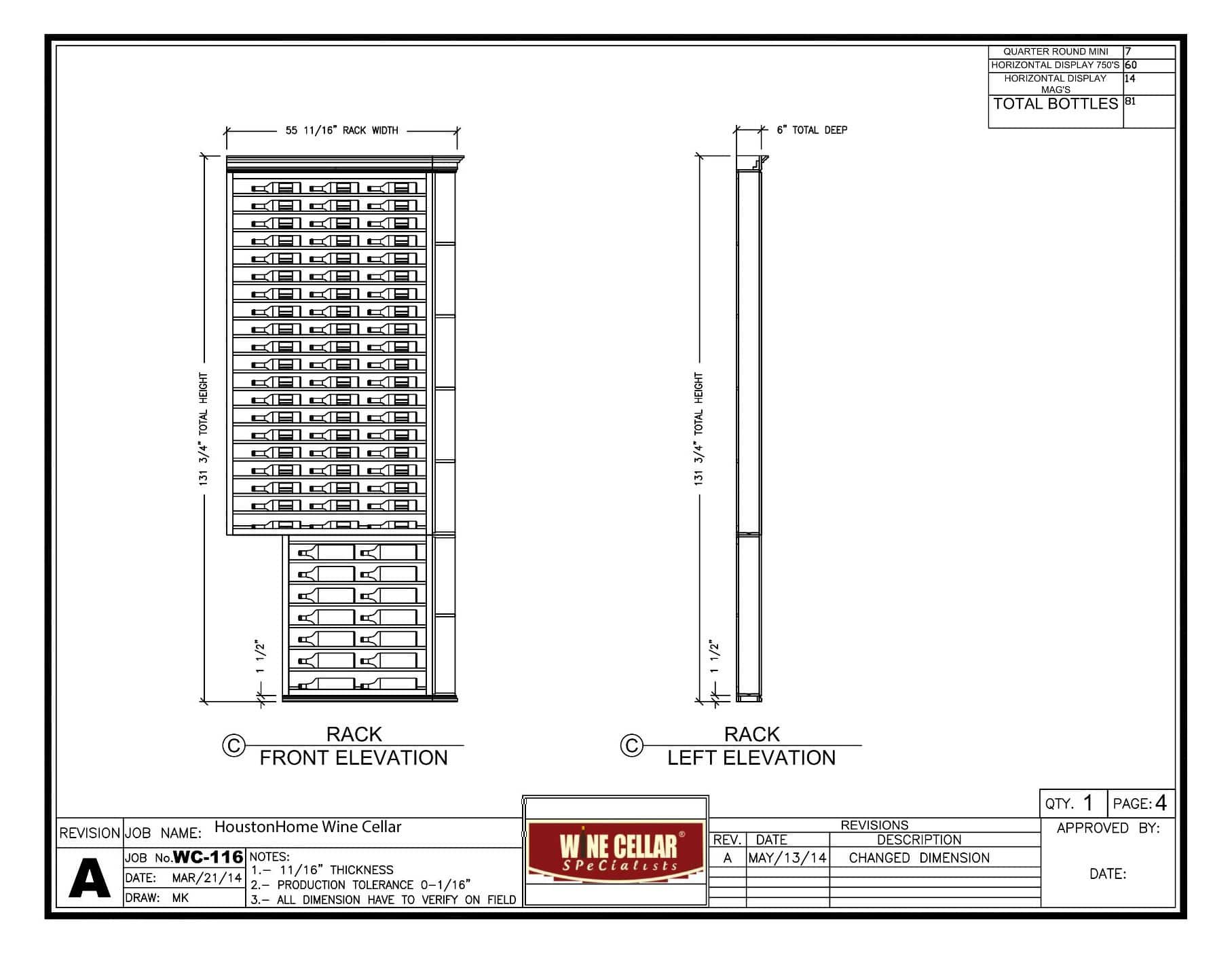
When you enter this home wine cellar in a Houston home, you will find horizontal wine racks at the top section of the right wall. They were intended for storing standard 750ml bottles.
The same racking can be found at the lower section but with larger bottle openings to house Magnum bottles. At the end of the wall is a mini quarter wine rack, which provides space for a few more bottles and some accessories.
Storing the bottles horizontally shows the label, making it easier to locate a specific type of wine without flipping the bottle. You will disturb the sediments of the wine when you flip the bottle, resulting in off flavors and aromas.
Left Wall

The racking in the left wall consists of more openings for 750ml bottles. Wine Cellar Specialists added a high reveal display row and installed a light valance above it for a dramatic effect.
At the top section is a wooden grill and cover where they concealed the RM2600 ductless split system to make it look like it was part of the racking.

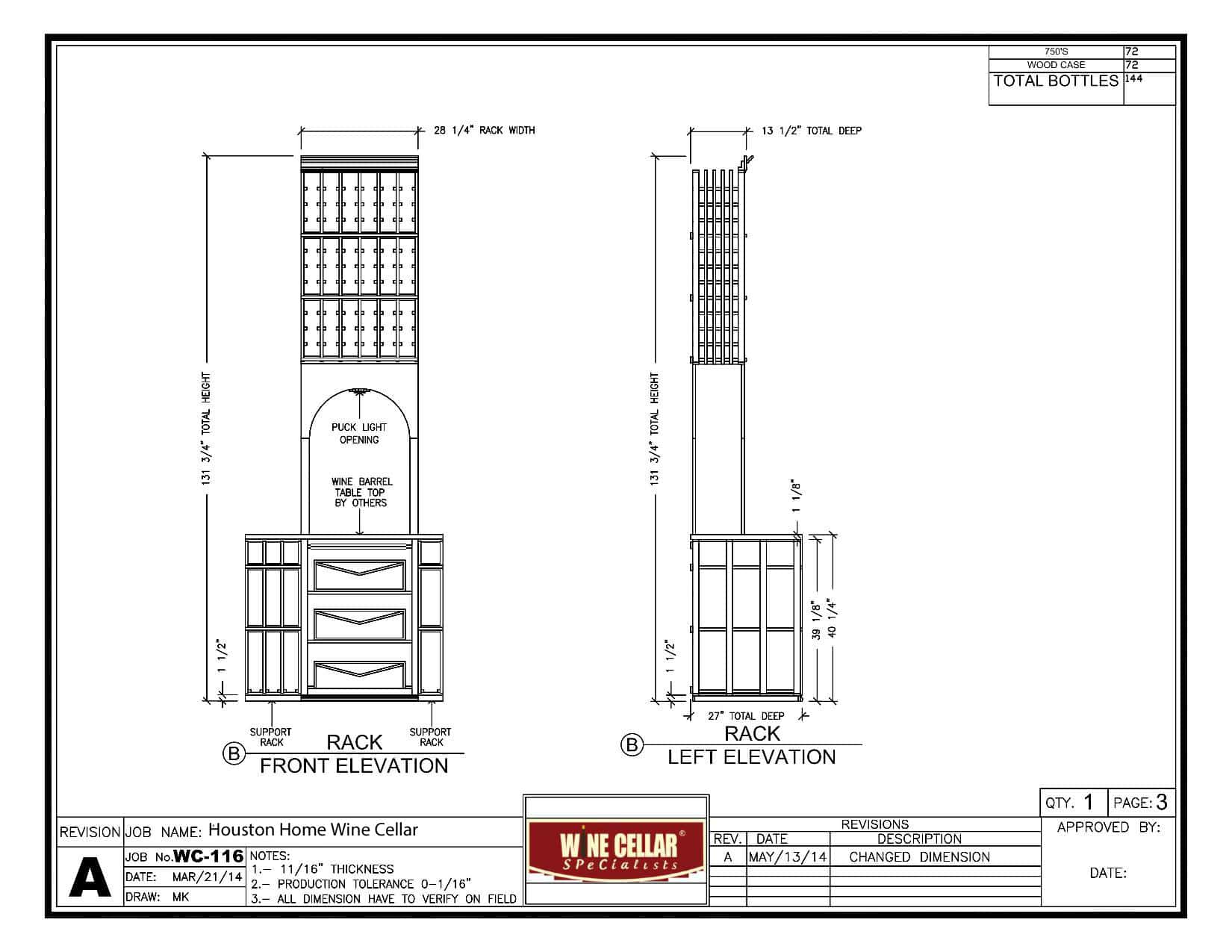
Back Wall

The focal point in this home wine cellar project in Houston is the solid arch with a tabletop. This area provides a great storage place for a few bottles.
The tabletop was constructed from the exterior of the reclaimed wine barrels (Cooperage style). Below it is a double deep wine rack for six wood cases, ideal for storing wines in bulk.
A puck light was installed above the solid arch. The top section of the back wall consists of individual racks.
Turn Your Small Room into a Magnificent Wine Cellar
Custom Wine Cellars Houston works with experts to provide the most innovative wine storage solution to homeowners. If you are living in Texas or Chicago, Wine Cellar Specialists will help build your dream wine cellar. Contact them today at +1 972-454-0480!









