CELLARS BUILDERS

A family in Texas needed a master builder to build a wine room with an impressive and functional design. Custom Wine Cellars Houston worked with Wine Cellar Specialists to complete the home renovation project. We had to transform a carriage house into a wine cellar. Learn more about the impressive features of this wine storage facility.
Stellar Wine Cellar Design for a Carriage House in Texas
Wine Cellar Specialists is one of our partners in residential wine room construction. They provide us efficient and attractive storage solutions for our installation projects in the Texas areas. In Houston, the owners of a used-to-be carriage house were looking for a local builder who could help them turn the room into a stunning wine display area.
The Old Room

The large room used to have two doors. The door on the left side was the entryway to the carriage house. The right door was the entrance to the bathroom. There were rectangular glass windows at the lower section and an eye-catching sun-shaped window at the top.
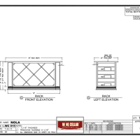
3-Dimensional Drawings
We started the project by making a careful assessment of the client’s needs and requirements. When designing a wine cellar, we consider many factors to achieve beauty and functionality. We take into account the number of bottles for storage, size and location of the room, and the client’s budget and personal style.
The 3-dimensional drawings show the different elevations, bottle capacities, and dimensions of the wine racks on each wall.
Elegant Wine Rack Features
We always want our clients in Houston to be proud of their home wine cellar, so we create a functional and stylish design for each project, and we use only high-quality materials.
Our creative and experienced team was able to come up with a racking system for 3,000 bottles. We used various bottle orientations for maximum storage capacity and a visually appealing wine display.
Left Wall (Elevation A)

As you enter this wine cellar in Houston, you will see that the left wall (which previously consisted of glass windows) starts with a solid quarter round shelf. It provides a space for displaying a few bottles vertically and wine accouterments. It is located near the door.
We designed the top section with individual bottle openings and two sections of French style wine racks. We left the sunburst design window at the top center of the left wall.
We used antique, stained green glass to make it look more attractive. The glass panels were dual paned to prevent condensation from forming on the walls and ceiling. Condensation triggers mold growth, which can damage the wine labels and racks.
On each side of the window is where we placed the twin evaporators. We concealed the units in a grill cover and box, which were made of the same material as the racking.
At the bottom section of the left wall, we added more single bottle racks and diamond bins for bulk storage. This racking style allows for better organization of the bottles. The owners can use each section to store bottles according to style or size.
The bottles are stored on top of each other. We also incorporated four sections for wooden cases at the bottom.
The display row that lines the middle of the racking displays the bottles at an angle to keep the cork moist. A dry cork will become brittle and may lose its elasticity. When this happens, an unwanted amount of air will get into the bottle and will oxidize the wine. This will affect the wine’s taste and smell, resulting in a waste of investment.
Back Wall (Elevation B)

The back wall is the focal point of the wine cellar. It consists of three diamond bins at the top. The two double-deep cabinet doors and drawers at the bottom provide storage for stemware and other wine cellar accessories like decanters and bottle openers.
The cabinets consist of an adjustable shelf, and the drawers are self-closing for convenience. On each side of the cabinets are diamond bins.
We added a granite counter top above the diamond bins and drawers to provide space for the owners to decant and serve their favorite vintages. The area is also a great place for displaying a few bottles that are to be consumed soon.
Another beautiful feature of the back wall is the solid arch with a puck light above it. We included stemware racks on both sides of the arch. They store the wine glasses upside down.
Right Wall (Elevation C)

Just like the left wall, the racking design on the right wall of this home wine cellar in Houston, has the individual wine racks, diamond bins, a display row, and French style wine racks.
The only difference is that there is no cooling equipment concealed in this wall. We just added more bottle openings for individual storage and diamond bins.
Rolling Ladder for Convenience

When designing a wine room, we also want our clients to have convenience in accessing their bottles. On this project, we added a library rolling ladder so the homeowners could access the bottles located at the high areas of the racking. It eliminates the need to climb on something to reach a bottle of wine.
We offer two styles of ladder for wine cellars: bent and straight. We decided to use the bent ladder because it helps to access bottles stored in double deep wine racks.
For the wheels, we chose the sunburst design. The ladder rails, which have a matte black finish, were attached to a piece of solid wood that lines the entire racking. The rolling ladder can be moved from one wall to another through a hook attached to the rails.
Elegant Wood Choice for a Home Wine Cellar in Houston

The choice of racking material has a great impact on the overall ambiance of a wine cellar. Between wood and metal, wood is a favorite choice of many wine collectors because of its benefits.
For this project, we used Knotty Alder for the wine racks and the ladder. This type of wood is suitable for climate-controlled wine cellars because it can withstand the humid conditions and extreme changes in temperatures.
Additionally, Knotty Alder is also naturally beautiful because of its knots and burls. We applied a rustic stain and lacquer for a richer look.
Other wood varieties that can last inside a cellar include mahogany, poplar, redwood, and cedar.
Convert Your Room into a Stunning Home Wine Cellar. Work with Houston Builders.
If you need help in transforming a space into a beautiful wine room, please don’t hesitate to contact Custom Wine Cellars Houston at +1 (972) 454-0480.
See below more photos of the wine cellar:














